Introducing Total Monthly Leasing Price
Planning your budget is essential, and we’re here to make it simpler. Our Total Monthly Leasing Price reflects all fixed, mandatory fees alongside your base rent, giving you a complete picture of your monthly costs. To customize your Total Monthly Leasing Price and plan with confidence, use our Calculate My Costs tool found within the Map view. We’ve also provided a list of all potential fees you may encounter as a resident, which can be found at the bottom of the page.
Transparency meets convenience—so you can focus on finding the perfect home.
Choose a home like no other.
Select from six different apartment buildings, and opt for a one-of-a-kind layout with Alston’s Signature Collection. Explore our studio, one-, two-, and three-bedroom floor plans, see our Signature Collection availabilities, and make your move.
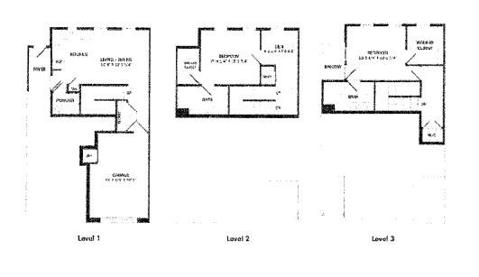
Floor plans are artist’s rendering. All dimensions are approximate. Actual product and specifications may vary in dimension or detail. Not all features are available in every rental home. Please see a representative for details.
Easy-To-Use Guide
To make things simple and clear, we’ve put together a list of potential fees you might encounter as a current or future resident. This way, you can easily see what your initial and monthly costs might be in addition to base rent.
Introducing Total Monthly Leasing Price
Planning your budget is essential, and we’re here to make it simpler. Our pricing reflects all fixed, mandatory fees alongside your base rent, giving you a complete picture of your monthly costs. Use our Calculate My Costs tool to customize your Total Monthly Leasing Price and plan with confidence.
Transparency meets convenience—so you can focus on finding the perfect home.
